Engineering considerations for New Construction Homes in Southwest Florida
- Forsyth

- 20 minutes ago
- 5 min read
Building a new home in Southwest Florida is not simply a design exercise—it is an engineering one. The region’s climate, soil conditions, wind loads, and flood risks require a higher level of planning and execution than many other parts of the country.
Understanding these factors early in the process leads to safer structures, lower long-term maintenance costs, and homes that perform as intended for decades. Below will be a great piece of information helpful in grasping the engineering employed in your homes construction.

Structural Design for Wind and Storm Loads
Southwest Florida lies within a high-velocity hurricane zone, making wind resistance a primary engineering concern. New construction homes must be designed to comply with the most current revision of the Florida Building Code (FBC), including:
Wind load calculations based on geographic exposure
Proper roof geometry and fastening schedules
Continuous load paths from roof to foundation
Impact-rated openings or approved shutter systems
Wind load design is one of the most critical engineering components of residential construction in Southwest Florida. Due to the region’s exposure to tropical storms and hurricanes, structures must be designed to resist extreme wind pressures in accordance with the Florida Building Code (FBC), which adopts ASCE 7 standards for wind loading.
Basic Wind Speed in Southwest Florida
Most of Southwest Florida falls within a 140–170 mph ultimate design wind speed zone, depending on proximity to the coast and local jurisdiction. Coastal areas, barrier islands, and properties near open water are typically subject to higher wind speeds.
These wind speeds are not arbitrary—they are statistically derived values representing extreme wind events with defined return periods. All structural elements must be designed using these speeds as a baseline.

Components of Wind Load Calculations
Wind load calculations are not a single number; they are the result of several interrelated factors, including:
Ultimate design wind speed
Exposure category
Building height and geometry
Enclosure classification
Internal and external pressure coefficients
Importance factor / Risk category
The engineer of record (EOR) evaluates how these variables interact to determine pressures acting on the roof, walls, openings, and structural connections.
Wind Exposure Categories in Southwest Florida
Wind exposure describes how terrain and surrounding features affect wind velocity at a structure. This is one of the most influential variables in wind design.
Exposure B
Urban and suburban areas
Numerous closely spaced obstructions such as houses, buildings, trees
Typical inland residential neighborhoods
Exposure B results in lower wind pressures due to shielding from surrounding structures.
Exposure C
Open terrain with scattered obstructions
Flat open areas such as fields, canals, golf courses
Many residential areas in Cape Coral, Lehigh Acres, and newer developments
This is the most common exposure category in Southwest Florida and results in significantly higher wind pressures than Exposure B.
Exposure D
Coastal areas adjacent to large bodies of water
Barrier islands, beachfront properties, and homes facing open water
Applies when wind can travel over water for at least 5,000 feet unobstructed
Exposure D produces the highest wind loads and requires enhanced structural design, fastening schedules, and opening protection.
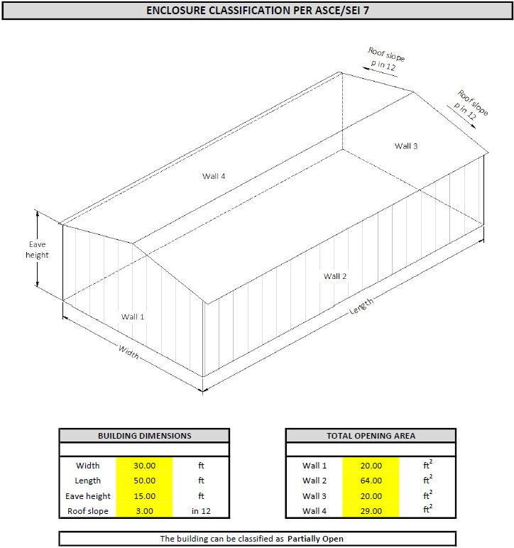
Building Enclosure Classifications
Homes are also classified based on how wind can enter the structure:
Enclosed – All openings protected (impact-rated or shutters)
Partially enclosed – Some openings unprotected (results in higher internal pressures)
Open – Rare for residential construction
Most new construction homes are designed as fully enclosed, which significantly reduces internal pressure and overall structural demand.

Continuous Load Path Design
A key engineering requirement in Florida is a continuous load path, ensuring wind forces are transferred safely from:
Roof system→ wall system→ foundation→ soil
This includes:
Hurricane straps and clips
Anchor bolts and tie-downs
Proper shear wall placement
Reinforced masonry and bond beams
Failure at any connection point can compromise the entire structure, even if individual components meet code.

Roof Geometry and Wind Uplift
Roof shape has a major impact on wind performance:
Hip roofs generally perform better than gable roofs
Overhangs increase uplift forces and require special detailing
Roof zones (corner, edge, field) experience different pressure values
Engineers calculate uplift pressures by roof zone, which directly influence:
Roof sheathing thickness
Nail size and spacing
Underlayment requirements
Truss attachment details
Why Exposure and Wind Design Matter
Improper exposure classification or underestimated wind loads can lead to:
Roof failure
Window and door blowout
Structural wall damage
Increased insurance costs
Failed inspections or post-storm claims issues
Accurate wind load engineering ensures compliance, safety, and long-term durability especially in hurricane-prone regions.
Soil Conditons
Local soil composition varies widely across Southwest Florida, from sandy coastal soils to areas with higher organic content. Proper foundation design begins with understanding these conditions and selecting the appropriate system, typically:
Reinforced concrete slab-on-grade
Stem wall foundations with properly compacted fill
Elevated slabs in flood-prone zones
Ignoring site-specific soil conditions can lead to settlement, cracking, and long-term structural issues. Engineering oversight at this stage is critical.

Flood Zone Compliance and Elevation Requirements
Many properties in Lee and Collier Counties fall within FEMA-designated flood zones. New construction must meet:
Minimum finished floor elevations
Flood-resistant material requirements
Drainage and site grading standards
Designing above minimum requirements is often advisable and can result in lower insurance premiums and improved long-term resilience.

Material Selection for Durability
Southwest Florida’s heat, humidity, and salt air demand materials that perform well in aggressive environments. From an engineering standpoint, commonly recommended materials include:
Concrete masonry unit (CMU) construction
Corrosion-resistant fasteners and connectors
Tile or metal roofing systems
Moisture-resistant interior finishes
Material compatibility and proper installation are just as important as material selection itself.
Energy Efficiency and Building Performance
Modern engineering practices emphasize not only structural integrity but also building performance. A well-designed new construction home should incorporate:
Proper insulation values and air sealing
Correct HVAC sizing based on load calculations
Ventilation strategies to manage humidity
Energy-efficient windows and doors
These systems work together to improve indoor comfort, reduce energy consumption, and extend the life of the home.
The Importance of Qualified Professionals
New construction in Southwest Florida requires coordination between engineers, designers, contractors, inspectors, and local authorities. Working with licensed professionals who understand regional requirements helps ensure:
Code compliance
Fewer construction delays
Reduced risk of costly corrections
A structurally sound, well-performing home
Build With Confidence From the Ground Up
Wind loads, exposure categories, and structural detailing are not areas where assumptions should be made—especially in Southwest Florida. Every site presents unique conditions that must be properly evaluated to ensure long-term performance, safety, and code compliance. If you are planning a new construction home and want it engineered and built correctly from day one, Forsyth Construction is here to help.📩 Email Forsyth Construction today to discuss your project, review site-specific wind exposure considerations, and take the first step toward a home designed to withstand Southwest Florida’s environment with confidence.




Comments